0 Elemento artículos
Bajo pedido (+1 semana)
Advertencia: ¡Últimos artículos en inventario!
Disponible el: 01/01/2000

xxxxx
Destinatario :
* Campos requeridos
o Cancelar
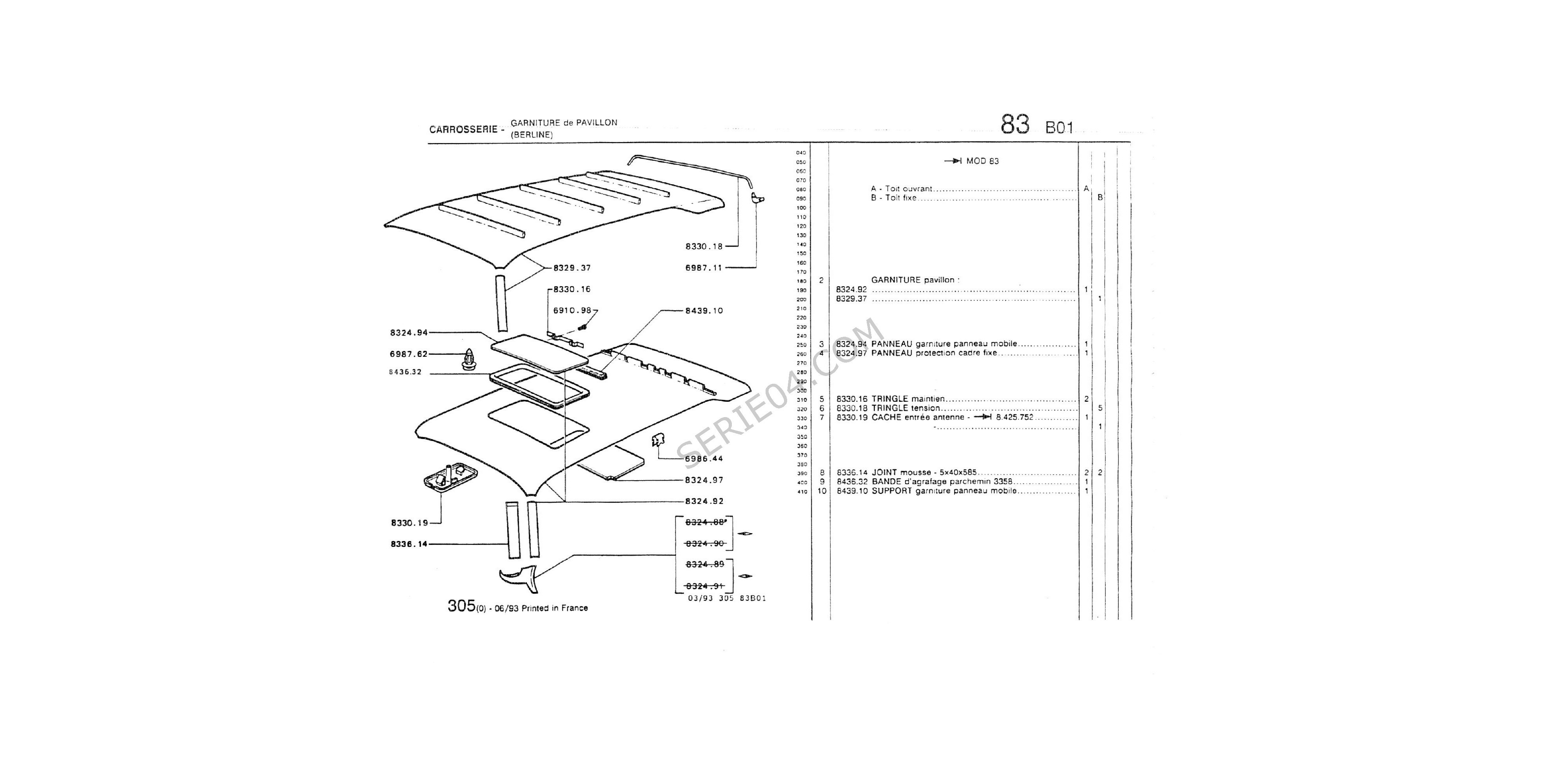
| Coche | 305 |
montajes del kit y las hachas y las paradas del tren de morro y dirección...
válvula del calentador de la manguera
juego de 4 encendedores de ventana interior + 4 encendedores de ventana exterior